Добро пожаловать на http://vipplan.ru

Випплан Нарофоминск - это тысячи проектов домов в нашем каталоге!

Вы всегда сможете найти для себя проект дома вашей мечты! Даже если этого не случилось, мы готовы в любую минуту предложить проект индивидуального дома.

Забыли пароль?
Вы еще не регистрировались?

Перейдите по ссылке ниже на страницу регистрации.

Регистрация...

Внимание!!!

В проектную документацию могут быть внесены изменения любой сложности, в соответствии в Вашими пожеланиями!

Полезные статьи

Установка систем вентиляции

Проектирование и установка систем вентиляции начинается на этапе создания проекта дома, в котором, наряду с газо- и электрификацией, водоснабжением и системой канализации, проектируется система вентиляции...

Окна в доме

От хорошего стеклопакета зависит почти 50% теплостойкости всего дома. Ведь на проемы в окнах приходится до 45% тепловых потерь дома. Поэтому хорошие стеклопакеты не пропускают тепло из комнаты и должны противостоять проникновению ветра, влаги и холода с наружной стороны....

Проекты домов и коттеджей > Каталог проектов домов > Проект двухэтажного дома с гаражом и витражами Vg2306

Проект двухэтажного дома с гаражом и витражами Vg2306

Проект двухэтажного дома с гаражом и витражами
Зарегистрируйтесь

Проект № Vg2306


Техническое описание
Общая площадь: 211 м2
Жилая площадь: 109.04 м2
Высота здания: 9.43 м
Размеры дома: 11.86м×15.06м
Кол-во комнат: 6
Цокольный этаж: нет
Гараж: нет
Мансарда: нет

Kонструкция
Фундамент: Монолитная ж/б плита
Перекрытия: Деревянные балки перекрытия
Материал стен: Бетонные блоки

Архитектурный раздел
Конструктивный раздел
Инженерный раздел
АР+КР - 64 000 (Со скидкой 20%)
АР+КР+ИР - 137 850 (Со скидкой 50%)
Модель проекта индивидуального двухэтажного жилого дома с размерами здания 11,86 x 15,06 м. Наружная отделка здания - сайдинг. Фундамент - монолитная ж/б плита. Наружные стены - отсевоблок. Внутренние стены - отсевоблок. Перегородки - отсевоблок и гипсокартон на металлическом каркасе. Пол первого этажа - пол по фундаментной плите. Межэтажное перекрытие - деревянные балки перекрытия. Крыша - четырехскатная. Кровля - металлочерепица. Окна - металлопластиковые. Лестница - металлическая.
Генплан застройки участка / Паспорт проекта 7000 руб / 10000 руб
Инженерный раздел (полный) 73850 руб (105500 руб)
Смета на строительство 52750 руб
Теплотехнический расчет материалов стен Бесплатно
Стоимость проекта со незначительнми изменениями 74700 руб
Стоимость проекта со средними изменениями* 90600 руб
Стоимость проекта со значительными изменениями** 94800 руб

План первого этажа


Тамбур - 5,93 кв м
Холл - 12,99 кв м
Гостиная - 30,82 кв м
Кухня - 9,28 кв м
Помещение 1 - 4,36 кв м
Душевая - 6,02 кв м
С/у - 1,80 кв м
Парилка - 2,85 кв м
Гараж - 36,02 кв м

Проект двухэтажного дома с гаражом и витражами

Проект двухэтажного дома с гаражом и витражами

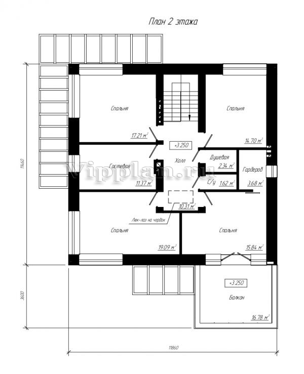
План второго этажа


Холл - 10,31 кв м
Спальня - 14,70 кв м
Душевая - 2,34 кв м
С/у - 1,62 кв м
Гардероб - 3,68 кв м
Спальня - 15,84 кв м
Балкон - 5,03* кв м
Спальня - 19,09 кв м
Гостевая - 11,37 кв м
Спальня - 17,21 кв м
Проект двухэтажного дома с гаражом и витражами Проект двухэтажного дома с гаражом и витражами Проект двухэтажного дома с гаражом и витражами Проект двухэтажного дома с гаражом и витражами

Модификации проектов

Внесение изменений и привязка к участку строительства

В любой из проектов от компании VIPplan - Нарофоминск по вашему желанию могут быть внесены изменения в материалы стен, материалы наружной отделки дома, а также будет произведена адаптация проекта под конкретный регион строительства (с учетом грунтов региона, геологических особенностей вашего участка и местных климатических условий) - БЕСПЛАТНО !!! (кроме проектов со скидкой и проектов наших партнеров).

Любой из проектов, размещенных на сайте narofominsk.vipplan.ru мы можем выполнить из требуемых вам строительных материалов: ячеистый бетон (газобетон, пеноблок), керамоблок, кирпич, шлакоблок, бетонный блок, дерево (брус, клееный брус), каркасная технология (деревянный каркас, металлокаркас (ЛСТК)).

Фасад дома и его наружную отделку так же возможно выполнить с применением различных облицовочных материалов: структурной штукатурки, (с утеплителем и без), сайдингом (пластиковый или металлосайдинг), фиброплитами, кирпича.

 
6 Избранные
проекты

Доставка проектов по России: Москва (Московская область), Санкт-Петербург (Ленинградская область), Краснодар, Ростов-на-Дону, Ставрополь, Сочи, Волгоград, Новосибирск, Белгород, Брянск, Воронеж, Саратов, Хабаровск, Астрахань, Нальчик, Владикавказ, Екатеринбург, Тюмень, Самара, Нижний Новгород, Казань, Пермь, Уфа, Челябинск, Красноярск, Ханты-Мансийск, Иркутск, Курган, Оренбург, Омск, Томск, Барнаул, Новокузнецк, Кемерово, Абакан, Чита, Якутск, Южно-Сахалинск, Петропавловск-Камчатский и страны ближнего зарубежья: Белоруссия, Украина, Казахстан